Профиль для окантовки конвектора J-образный
- Добавить в избранное
- Задать вопрос
Описание
Профиль для окантовки конвектора J-образный
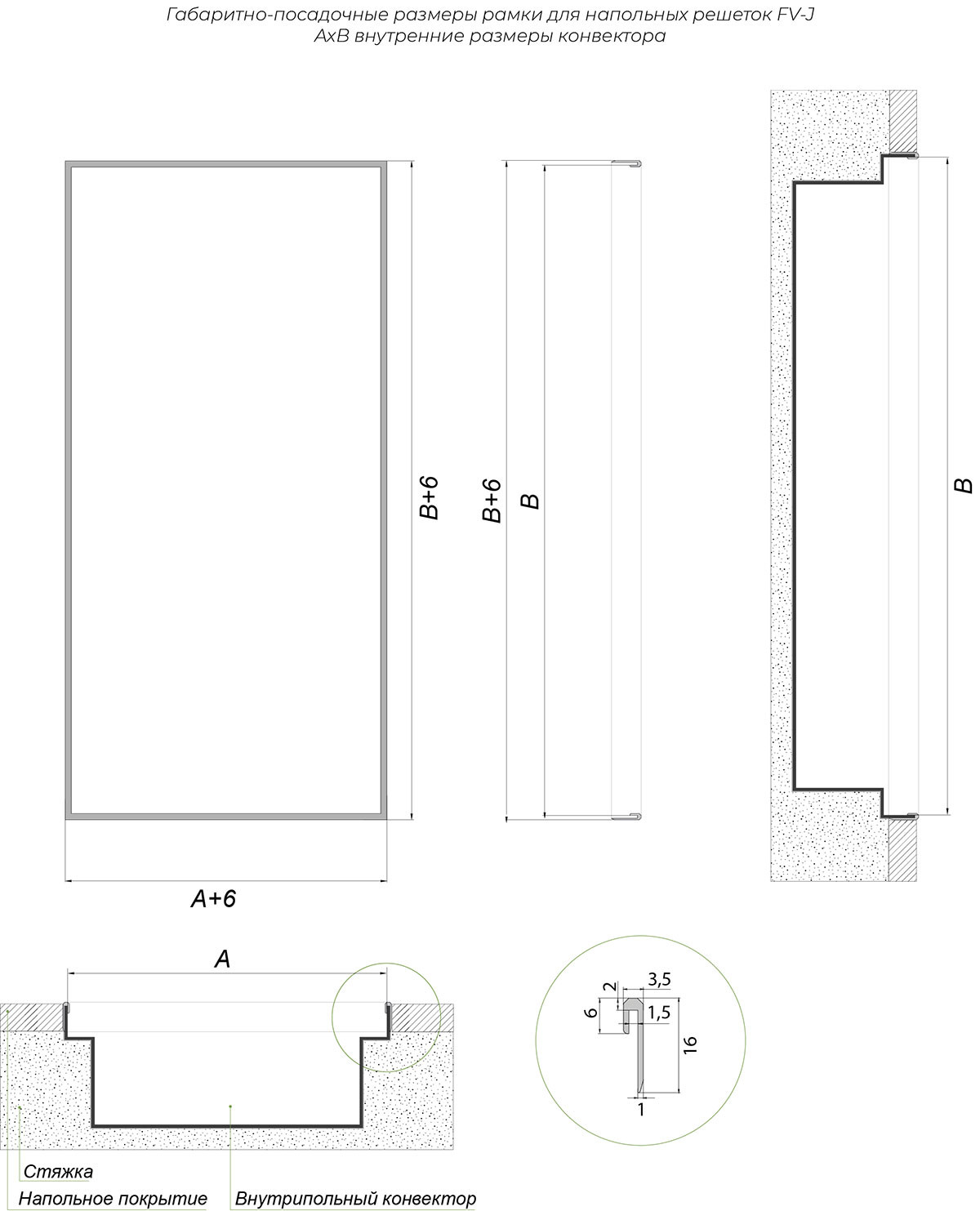
Рамки решеток внутрипольного конвектора предназначены для надежного и незаметного закрытия зазоров, образующихся при монтаже по краям конвектора. J-образный монтируется встык с напольным покрытием. Зазор между рамкой и напольным покрытием при необходимости заполняют пробковым герметиком. Поставляется в цвет решетки.
Определяющими размерами являются внутренние размеры конвектора. Профиль поставляется отрезками со срезом 90°, чтобы во время установки можно было сделать ровный срез для более точной стыковки под 45°. Длина отрезков имеет запас +50 мм к размерам конвектора. Возможна поставка погонными метрами кратно 3 метрам.
При изготовлении решеток используется запатентованный алюминиевый профиль АДЗ1 (ГОСТ 22233-2018). По умолчанию решетки окрашены полиэфирной порошковой краской белого цвета RAL 9016. По запросу возможно покрытие в другие стандартные цвета по шкале RAL или анодирование.


Характеристики
-
Место примененияВ пол
-
ПроизводительООО "ЗАВОД ВРК"
-
Способ монтажаВстраиваемая
-
РегулировкаНерегулируемая
-
БрендTHE GRILLES
-
МатериалАлюминий
-
КонструкцияРазборная
-
Предоплата100%
Особенности
Чертеж
Отзывы
Отзывов нет. Станьте первым, кто оставит отзыв!
Пример заказа
- Похожие товары
Способы монтажа
Мы располагаем огромными возможностями и выбором
Монтаж наружных решеток встраиваемых
Способы установки ВРН, ВРН-А, ВРН-К, ВРН-С, РН-40 и др.
Монтаж наружных решеток накладного типа
Способы установки накладных решеток ВРН-Н, ВРН-НС, ВРН-МН, ИР-Н
Монтаж регулируемых решеток
Способы установки однорядных и двухрядных вентиляционных решеток РАГ, РАГ-М, РАД, РАГ-В
Монтаж щелевых решеток скрытого монтажа
Airslot / G-Line / Airline-L / Airline-LS / Airline-T / G-Look / PV
Монтаж переточных решеток
Технология установки переточных решеток
Монтаж встраиваемых щелевых решеток серии АДЛ
АДЛ, АДЛ-З, АДЛ-К, АДЛ-КЗ
Получите консультацию
Оставьте свои контактные данные и мы вам перезвоним!